k8天生赢家_k8凯发官网入口
PRODUCT 产品中心
当前位置:第五系列

Title
彻底疯了~四环好房子三居500万

发布时间:2025-08-06 19:27:34    作者:小编    点击量:

  第一,19号线南延二次环评来了,确定了南延的6个站点。这预示着19号线南延稳了,只待开工。

  第二,公积金正式下调利率0.25个百分点,如果按公积金首房首贷30年账期贷款160万去算,较之前每个月少还200多块钱,总额少7万多块钱。这不等于买房优惠了7万多么~

  第三,四环首个上车起步价三居好房子来了~总价500万。带阳台、带中央空调+新风、带全屋收纳柜体空间,小区有会所、有水系、有四季景观园林…

  关键是,这个500万四环上车的好房子三居,就在地铁19号线南延的西红门东站周边,好事儿全让他赶上了。

  位于西红门东站附近的壹品兴创元启是西红门板块首个好房子项目,南北双阳台,能用的空间高达90%左右,并且符合公积金上浮标准,首次公积金贷款可以申请160万额度。

  西红门东板块自2021年开发至今,已经初具规模。区域内的黄城根小学大兴校区已经开学,北京四中西红门分校也计划于今年内开工建设。东板块的商业综合体元创大都会也计划今年启动招商。

  更何况西红门板块本身拥有山姆会员店、荟聚、宜家等知名的大型商业综合体,只能说周边会越来越好。

  元启项目是西红门东板块首个按照好房子标准规划的新盘项目,在我看来其优势主要体现在如下几个方面。

  元启项目有目前为止区域内最大的会所,约1800平米。会所中包含25米泳池、棋牌室、健身房、四点半学堂等多个功能区,这是好房子所提倡的生活方式以及标准之一。

  我说过,会所是园林的参考标准之一。会所做的好,园林自然也不会差。元启项目的园林内,有水系、有廊庭、有四季景观、有名贵树种。算是区域内园林标准头牌。

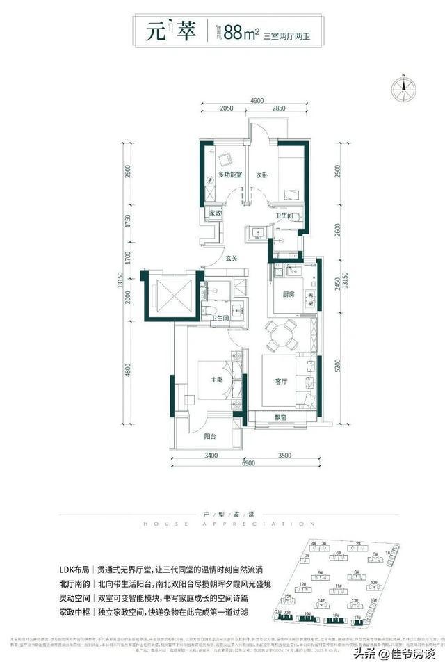
  项目88平米小三居就是总价约500万,整个四环地铁沿线的入门级别品质三居。

  该户型不同于以往产品,有南北阳台。计入赠送阳台的使用空间,整体户型使用空间差不多在90%左右。

  该户型的另一个特质就是开放空间,厨房与客厅所形成的开放空间增加了整体户型的利用率,并且厨房开北窗可以与客厅形成南北通透的对流格局。

  别看户型不大,功能齐全。不论是玄关、家政间、餐边柜,这类收纳空间都有,总面积不大利用率极高。

  项目南北向户型均为南北双阳台,并且阳台做了错层处理。比如楼下客厅阳台,楼上就是卧室阳台。这么做的好处,阳台纯赠送,不计入房本面积。对于购房者而言买房没额外花钱,还白得了阳台的实际空间,这不挺好。

  以元启项目88平米三居为例,项目交付标准不光包含家政间、餐边柜等收纳空间,甚至于主卧室将收纳空间最大化的通顶定制衣柜也是交付标准,是市面上比较少见的。这就基本上做到拎包入住了。

  其实这些交付标准才是最让我惊讶的。四环500万品质三居,园林在线、户型不错、精装标准不减,我自己都觉得不可能。然而,这件事在元启这个新盘项目却是真的。

  当然,元启项目不光只有88平米三居一个户型,户型面积区间从80平米至168平米三居四居,户型多样。

  据了解,目前项目关注度较高的三个户型产品分别是88、99、110平米三个三居户型。其中88平米与110平米三居好楼层已经不多,如果想买还需要抓紧来看。

  想了解元启项目更多优质房源信息,需要提供选房建议,要更多购房优惠,都欢迎您添加小秘书好友。

  特别声明:以上内容(如有图片或视频亦包括在内)为自媒体平台“网易号”用户上传并发布,本平台仅提供信息存储服务。

  父亲生前向儿子转账233万,继母发现后起诉返还!二审判儿子返还205万

  华裔前美能源部长朱棣文:他们(中国)有14亿人,我们只有3.5亿,但碳排放量只是我们的两倍

  湖北通报:李琳收受金条、加油卡、购物卡及礼金,被查处!石峰被撤职降级、陈祎被免职

  澳大利亚三分26投15中 36分大胜韩国 李贤重16投3中&三分12中2

  《编码物候》展览开幕 北京时代美术馆以科学艺术解读数字与生物交织的宇宙节律

  一图了解华为WATCH GT 5系列鸿蒙5.1升级:新增星环桌面、健康摘要

返回列表

联系我们

contact us
  ICP备案编号:琼ICP备xxxxxxxx号